Найменування товару: плити залізобетонні попередньо напружені ПАГ-14V для аеродромного покриття.


|
Показник |
Характеристики товару |
|
Нормативний документ, згідно якого виробляється товар |
ДСТУ Б В.2.6-136:2010 (ГОСТ 25912.1-91 MOD) |
|
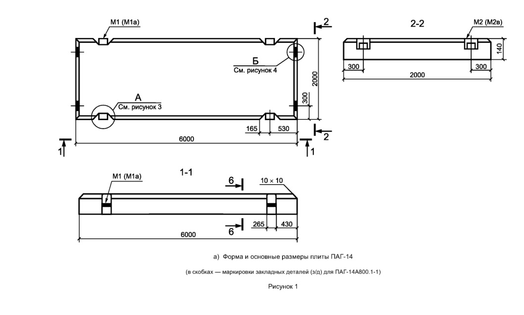
Розміри |
довжина – 6000 мм., ширина – 2000 мм., товщина – 140 мм. |
|
Відхилення геометричних розмірів плит ПАГ-14V від проектних не перевищують: |
- по довжині - + 6 мм., - по ширині - + 5 мм., - по товщині - + 4 мм., - різниця довжин діагоналей - 10 мм. |
|
Кінці напруженої арматури не виступають за торцеві поверхні плит більш ніж на: |
5 мм. |
|
Міцність бетону при відправленні з заводу складає не менш ніж: |
70% марочної літом та 80% взимку |
|
Марка цементу для приготування бетону не нижче: |
«400» |
|
Приймання |
Посвідчується в паспортах відповідними записами відділу технічного контролю підприємства-виробника |
|
Документи про якість, які подаються при постачанні товару: |
- Копія Сертифікату відповідності підприємства-виробника Товару; - Паспорт виробу; - Оригінал або завірена копія документу, який підтверджує виготовлення підприємством-виробником зазначеного Товару. |
|
Кожна партія Товару при постачанні супроводжується паспортом, в якому вказано:
|
- найменування і адреса підприємства-виробника; - номер партії і дата її виготовлення; - кількість, шт.; - найменування, марка; - результати приймально-здавальних випробувань; - технічні характеристики; - позначення нормативного або технічного документу, за яким виготовляється Товар |
|
Термін гарантії |
1 рік з дня постачання Товару |
